闸阀概述闸阀的启闭件是闸板,闸板的运动方向与流体方向相垂直,闸阀只能作全开和全关,不适合作调节和节流。闸板有两个密封面,最常用的楔式闸板阀的两个密封面形成楔形,楔形角随阀门参数而异,通常为5°。楔式闸阀的闸板可以做成一个整体,叫做刚性闸板;也可以做成能产生微量变形的闸板,以改善其工艺性,弥补密封面角度在加工过程中产生的偏差,这种闸板叫做弹性闸板。闸阀关闭时,密封面可以只依靠介质压力来密封,即依靠介质压力将闸板的密封面压向另一侧的阀座来保证密封面的密封,这就是自密封。大部分闸阀是采用强制密封的,即阀门关闭时,要依靠外力强行将闸板压向阀座,以保证密封面的密封性。闸阀的闸板随阀杆一起作直线运动的,叫升降杆闸阀(亦叫明杆闸阀)。通常在升降杆上有梯形螺纹,通过阀门顶端的螺母以及阀体上的导槽,将旋转运动变为直线运动,也就是将操作转矩变为操作推力。有的阀门,阀杆螺母设在闸板上,手轮转动带动阀杆转动,而使闸板提升,这种阀门叫做旋转杆闸阀或叫暗杆闸阀。
1.流体阻力小,密封面受介质的冲刷和侵蚀小。
2.开闭较省力。
3.介质流向不受限制,不扰流、不降低压力。
4.形体简单,结构长度短,制造工艺性好,适用范围广。闸阀的种类:按密封面配置可分为楔式闸板式闸阀和平行闸板式闸阀,楔式闸板式闸阀又可分为:单闸板式、双闸板式和弹性闸板式;平行闸板式闸阀可分为单闸板式和双闸板式。按阀杆的螺纹位置划分,可分为明杆闸阀和暗杆闸阀两种。
本公司闸阀产品有:楔式闸阀、刀型闸阀、弹性座封闸阀、JIS日标、ANSI美标闸阀、夹套保温闸阀、浆液阀、锻钢闸阀、平板闸阀、暗杆闸阀、真空闸阀等系列产品。公称压力或压力级:PN1.0-16.0MPa、ANSI CLASS 150-300LB、JIS10-20K公称通径或口径:DN10~1000、NPS 1/2 ~36"连接方式:法兰、对焊、螺纹等适用温度:-196℃~700℃驱动方式:手动、伞齿轮传动、气动、电动、液动、气液联动、电液联动阀体材料:WCB、ZG1Cr18Ni9Ti、ZG1Cr18Ni12Mo2Ti、CF8(304)、CF3(304L)、CF8M(316)、 CF3M(316L)、Ti。选用不同的材质,可分别适用于水、蒸汽、油品、硝酸、醋酸、氧化性介质、尿素等多种介质。
以上是Z41H 铸钢法兰闸阀的详细信息,如果您对Z41铸钢法兰闸阀的价格、厂家、型号、图片有什么疑问,请联系我们获取Z41铸钢法兰闸阀的最新信息。
三、Z41H铸钢法兰闸阀--执行标准 Administer Standard
设计与制造 Design and Manufacture | 结构长度 Face To Face | 法兰尺寸 Flange Dimension | 压力-温度 Pressure Temperature Lating | 试验-检验 spection And Test |
GB122234 | GB12221 | GB9113 JB79 | GB9131 | GB/T13927 JB/T9092 |
四、Z41H 铸钢法兰闸阀--压力试验 Pressure Test
公称压力 NominalPressure | 1.6 | 2.5 | 4.0 | 6.4 | 10.0 | 16.0 |
强度试验 Shell Test | 2.4 | 3.8 | 6.0 | 9.6 | 15.0 | 24.0 |
水密封试验 Water Seal Test | 1.8 | 2.8 | 4.4 | 7.0 | 11.0 | 18.0 |
上密封试验 Backseat Test | 1.8 | 2.8 | 4.4 | 7.0 | 11.0 | 18.0 |
气密封试验 Air Seal Test | 0.4-0.7 |
五、Z41H 铸钢法兰闸阀--主要零件材料及性能 Main Part Materials and Property
体、盖、板 Body Cover Disc | 阀杆 Stem | 密封面 Sealing Face | 垫片 Sealing Shim | 填料 Packing | 工作温度 Working Temperature | 适用介质 Suitable Medium | |
WCB | 2Cr13 | 13Cr STL 木体材料 With Body Material 尼龙 Nylon | 增强柔性石墨 13Cr/柔性石墨 Enhanced Flexible Graphite 1Cr13/Flexible Graphite 08软钢 08 Soft Steal 0Cr18Ni9Ti 0Cr17Ni12Mo2Ti XD550F(T) PTFE | 柔性石墨 增强柔性石墨 Flexible Graphite Enhanced Flexible Graphite SFB/260 SFP/260 PTFE | ≤425 | 水 蒸汽 油品 Water Steam Oil Goods | |
WC1 | 38CrMoAl 25Cr2MoV | ≤450 | |
WC6 | ≤540 | |
WC9 | ≤570 | |
C5 C12 | ≤540 | |
ZGCr5Mo | ≤200 | 硝酸类 Nitric acid | |
ZG1Cr18Ni9Ti | 1Cr18Ni9Ti | |
≤200 | 醋酸类 Acetic acid | |
ZG1Cr18Ni12Mo2Ti | 1Cr18Ni12Mo2Ti | |
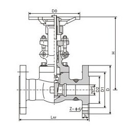
六、Z41H铸钢法兰闸阀--主要尺寸和重量 Size Main Dimensions and Weight
1.6MPa | DN | L | D | D1 | D2 | b | n-φd | H | D0 | 重量Weight |
凸面法兰 RF Z40H Z40Y Z40W Z40F Z40N Z41H Z41Y Z41W Z41F Z41N 16C 16P 16R 16I | 15 | 130 | 95 | 65 | 45 | 14 | 4-14 | 170 | 120 | 5 |
20 | 150 | 105 | 75 | 55 | 14 | 4-14 | 190 | 140 | 6.5 |
25 | 160 | 115 | 85 | 65 | 14 | 4-14 | 205 | 160 | 9 |
32 | 180 | 135 | 100 | 78 | 16 | 4-18 | 270 | 180 | 12 |
40 | 200 | 145 | 110 | 85 | 16 | 4-18 | 310 | 200 | 36.5 |
50 | 250 | 160 | 125 | 100 | 16 | 4-18 | 358 | 240 | 29 |
65 | 260 | 180 | 145 | 120 | 18 | 4-18 | 373 | 240 | 33 |
80 | 280 | 195 | 160 | 135 | 20 | 8-18 | 435 | 280 | 45 |
100 | 300 | 215 | 180 | 155 | 20 | 8-18 | 500 | 300 | 63 |
125 | 325 | 245 | 210 | 185 | 22 | 8-18 | 614 | 320 | 108 |
150 | 350 | 280 | 240 | 210 | 24 | 8-23 | 674 | 360 | 134 |
200 | 400 | 335 | 295 | 265 | 26 | 12-23 | 818 | 400 | 192 |
250 | 450 | 405 | 355 | 320 | 30 | 12-25 | 969 | 450 | 273 |
300 | 500 | 460 | 410 | 375 | 30 | 12-25 | 1145 | 560 | 379 |
350 | 550 | 520 | 470 | 435 | 34 | 16-25 | 1280 | 640 | 590 |
400 | 600 | 580 | 525 | 485 | 36 | 16-30 | 1452 | 640 | 850 |
450 | 650 | 640 | 585 | 545 | 40 | 20-30 | 1541 | 720 | 907 |
500 | 700 | 705 | 650 | 608 | 44 | 20-34 | 1676 | 720 | 985 |
600 | 800 | 840 | 770 | 718 | 48 | 20-41 | 1874 | 800 | 1112 |
700 | 900 | 910 | 840 | 788 | 50 | 24-41 | 2083 | 800 | - |
800 | 1000 | 1020 | 950 | 898 | 52 | 24-41 | 2400 | 950 | - |
900 | 1100 | 1120 | 1050 | 998 | 54 | 28-41 | 2950 | 1000 | - |
1000 | 1200 | 1255 | 1170 | 1110 | 56 | 28-48 | 3245 | 1000 | - |

七、Z41H铸钢法兰闸阀--安装与维护
1、 安装:
(1) 安装前须检查产品型号、位号及规格是否吻合,检查整机零件是否缺损与松动。
(2) 在安装前,对管道应进行清洗,阀门入口处要有足够的直管段,并配有过滤器。阀体与管道的法兰连接,要注意同轴度。
(3) 切断阀安装前,应先彻底清洗管道。
(4) 安装场地应考虑到人员设备的安全,既便于操作,又有利于拆装与维护。
(5) 阀门应正立垂直安装在水平管道上,不得已时可倾斜安装,尽量避免水平安装,阀自重量较大或有振动的场合,要用支撑架。
(6) 介质流动方向应与阀体上的箭头指向一致。气源应干燥、无油。阀门应在环境温度-20~55℃场所使用。
2、 维护:
(1) 清洗阀门:对清洗一般介质,只要用水洗净就可以。但对清洗有害健康的介质,首先要了解其性质,再选用相应的清洗办法。
(2) 阀门的拆卸:将外露表面生锈的零件先除锈,但在除锈前,要?;ず梅ё⒎?、阀杆与推杆等精密零件的加工表面。拆装阀座时应使用专用工具。
(3) 阀座:密封面有较小的锈斑与磨损,可用机械加工的方法进行,如损坏严重必须换新。但不管修理或更换后的硬密封面,都必须进行研磨。
(4) 阀杆:表面损坏,只能换新。
(5) 推杆、导向与密封表面的损坏:对反作用执行机构必须换新,而对正作用执行机构,可用适当的修理后使用。
(6) 压缩弹簧:如有裂纹等影响强度的缺陷,必须换新。
(7) 易损零件:填料、密封垫片与O型圈,每次检修时,全部换新。阀芯、膜片必须检查是否有预示将来可能发生的裂纹、老化与腐蚀痕迹,根据检查结果,决定是否更换,但膜片使用期一般最多2-3年。
(8) 阀门组装要注意对中,螺栓要在对角线上拧紧,滑动部分要加润滑油。组装后应按产品出厂测试项目与方法调试,并在这期间,可准确地调整填料压紧力、阀芯关闭位置。
上兆阀门其他产品:
闸 阀 截止阀 球 阀 蝶 阀 紧急切断阀 电磁阀 水力控制阀 止回阀 刀型闸阀 旋塞阀 过滤器 减压阀 疏水阀 隔膜阀 调节阀 阻火器 呼吸阀 燃气阀门 冶金阀门