

|
|||||||||||||||||||||||||||||||||||||||||||||||||
|
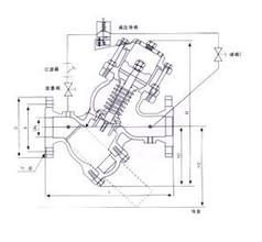
产品介绍 一、YQ98001型过滤活塞式可调减压阀--原理: YQ98001型过滤活塞式可调减压阀由比托管传递压差信号给流导阀, 限流阀和针阀执行两路控控制. 来控制主阀活塞上腔的压力. 通过限流导阀调节摞栓的调节. 使阀后流量达到设定值; 活塞下腔有节流孔与下游相通. 可绶冲阀门的关闭, 主阀两端压力差是阀门启. 闭的驱动能源。主要用于空调. 给排水. 消防和各类工矿企业等供水管网口需要过滤而且对流量实现控制的场所和工况。能将上游压力降低至所设置的下游压力,无论怎样改变上游的压力和流量,其预先设定的下游压力均能够保持不变。 产品外观图
二、YQ98001型过滤活塞式可调减压阀--连接尺寸:
三、YQ98001型过滤活塞式可调减压阀--特点: 1.毕托管向极敏感的限流导阀传递压信号, 无孔板孔口节流, 无压力损失, 节能. 五、YQ98001型过滤活塞式可调减压阀--主要参数:
六、YQ98001型过滤活塞式可调减压阀--安装方法及连接要求: 一、根据工况的减压特性,必须在该阀前安装 闸阀; 二、方便日后对该阀进行检修工作.必须在减压阀后安装可曲绕软连接; 三‘最佳安装方式为卧式,其它方位也可以接受; 四、必须留出足够的工作空间方便检修; 五、吊装时采用有效措施进行.也可利用该阀吊环进行。 七、YQ98001型过滤活塞式可调减压阀--安装图:
减压稳压阀 蒸汽减压阀 活塞式蒸汽减压阀 平衡阀 自力式压差控制阀 限流止回阀 紧急关闭阀 压差旁通阀 700X多功能水泵控制阀 水力电动控制阀 泄压阀/持压阀 流量控制阀 缓闭止回阀 300X缓闭止回阀 DN100缓闭止回阀 DN100口径缓闭止回阀 DN200口径缓闭止回阀 DN300口径缓闭止回阀 DN500口径缓闭止回阀 铸钢缓闭止回阀 不锈钢缓闭止回阀 铸铁缓闭止回阀 球墨铸铁缓闭止回阀 上兆阀门其他产品: 闸 阀 截止阀 球 阀 蝶 阀 紧急切断阀 电磁阀 水力控制阀 止回阀 刀型闸阀 旋塞阀 过滤器 减压阀 疏水阀 隔膜阀 调节阀 阻火器 呼吸阀 燃气阀门 冶金阀门 | |||||||||||||||||||||||||||||||||||||||||||||||||
相关产品 |
|||||||||||||||||||||||||||||||||||||||||||||||||