

| 固定球阀使用说明 发布时间:20-06-02 | |||||||||||||||||||||||||||||||||||||||||||||||||||||||||||||||||||||||||||||||||||||||||||||||||||||||||||||||||||||||||||||||||||||||||||||||||||||||||||||||||||||||||||||||||||||||||||||||||
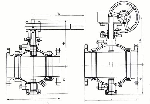
一、固定球阀--用途和结构特点 Q47型固定球阀是新一代高性能球阀,适用于长输管线和一般工业管线,其安全,耐恶劣环境性等在设计时均已进行了特殊考虑,适用于各种腐蚀性和非腐蚀性介质。它与浮动式球阀相比,工作时管道中阀前流体压力在球体上产生的作用力全部传递给上下轴承,球体不会移动,阀门密封靠弹簧和介质压力推动阀座实现,因而阀座不会承受过大压力,所以Q47型固定式球阀阀座变形小,操作力矩轻,密封性能可靠,使用寿命长。特别适用于高压,大口径的场合。 2、阀门结构图: ![]() 二、固定球阀--基本设计 阀门设计:GB/T 12237 API 6D 形 式:直通对开式阀体 直通三片式阀体 结构长度:GB/T 12221 ANSI B16.10 公称压力:PN0.6~10.0Mpa CLASS150~600Lb 连接形式:JB/T79.1~JB/T79.4 GB/T9113.1 ANSI B16.5 使用温度:-29~425℃ 适用介质:水、气、油品等 ![]() 三、固定球阀--工作原理和结构说明 本产品为法兰式固定球结构。它的启闭件为一个球体,利用球体绕阀杆旋转 90°实现的开启和关闭的目的。每台阀有两个阀座密封圈,每个方向都能密封,因而没有流向限制,是双向阀。中法兰用螺柱连接,上下阀杆均设有滑动轴承,减少摩擦,使操作省力、平稳。下阀杆底部设有调整垫片,保证球体与密封圈的接触位置。密封圈采用聚四氟乙烯镶嵌入阀座支撑圈内,阀座后部设有弹簧保证低压时阀座预紧力,保证密封。阀座预紧组件具有自紧特性,实现上游密封。 阀座密封圈的材料为RPTFE(增强聚四氟乙烯),具有摩擦系数小,性能稳定,不易老化等优点。 本批阀门具有安全防火功能,非金属四氟乙烯镶在阀座上面,低压时靠装配调整两阀座密封圈,使之贴近球体,靠四氟乙烯圈密封;高压时,由介质推动阀座,四氟圈和金属阀座同时密封。当事故起火时,四氟密封圈遇高温升华,失去密封作用,这时金属的阀座密封圈就可以暂时密封。 防静电结构:在阀杆与球体的接触部位,设有弹簧顶着一个钢珠,保持阀杆与球体始终接触,从而使球体防静电。 防阀杆飞出机构:阀杆是采用下压式结构,在压盖和填料完全松动的情况下,阀杆也不可能飞出。 泄压装置:当阀门中腔压力升高到大于管道压力时,中腔压力会自动推开阀座,使之脱离球体,把中腔的高压泄到管道中去,从而保证了安全。 阀门流量孔与管线内径一致,以便管线清扫。阀腔底部设有排污阀,清洗管道时作排污用。 蜗轮手动,蜗轮轴盖上带有方向指示盘,手轮顺时针方向旋转,关闭;手轮逆时针方向旋转,开启。(箭头指向通道两边为阀门开启) 四、主要外形尺寸及主要零件材料: 1、主要零部件材料表:
Q347F蜗轮固定式法兰球阀--外形尺寸: PN1.6MPa下的硬密封固定球阀外形尺寸
PN2.5MPa下的硬密封固定球阀外形尺寸
五、固定球阀--安装与维护 1、安装 1.1安装前应仔细核对阀门铭牌内容,保证阀门类型、尺寸、阀座材料、使用温度等额定值符合管道的使用情况; 1.2安装前最好能对阀门所有连接处的螺栓进行检查,保证其已均匀拧紧。并检查填料是否压紧而密封; 1.3安装前应对管线进行清扫,去除管线中的油污、焊渣等杂质; 1.4阀门在搬运中应轻取轻放,禁止抛扔或跌落; 1.5大型阀门应安装固定支架,保证阀门安装后整条管线的稳定性和安全性; 1.6阀门安装时应取下阀门两端的防尘盖; 1.7阀门往管线上安装时,在法兰间应垫合适的密封垫片,取相应规格的螺栓把法兰对角均匀拧紧; 1.8如阀门安装后发现阀杆密封渗漏,可能是在运输中震动和温度变化引起填料松驰,拧紧填料压盖螺母即可。并注意给填料加些润滑油,可减轻操作力矩; 1.9安装完后应对阀门驱动装置进行检查和测试。 2、储存与维护 2.1在干燥通风的室内,两端应盖上防尘盖,以保证阀门的内腔清洁; 2.2长期存放的阀门密封面应涂防锈油,并定期检查。 |
|
||
|
||
|
||
|
||
|
||
|
||
|
||
|
||
|
||
|
||
|
||
|
||
|
||
|
||
|
||