

|
|||||||||||||||||||||||||||||||||||||||||||||||||||||||||||||||||||||||||||||||||||||||||||||||||||||||||||||||||||||||||||||||||||||||||
|
产品介绍 ZMF铸铁镶铜方闸门详细资料:
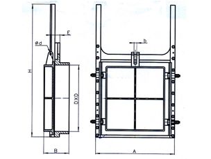
一、 产品用途: 铸铁镶铜方闸门主要用于给排水、防汛、灌溉、水利、水电工程中,用来截止、疏通水流或起调节水位的作用,根据建设部通用标准和美国AWWA标准设计生产。它采用独特的外弧形设计,结构合理、受力均匀,采用优质灰口铸铁或球墨铸铁、不锈钢制造,止水密封面镶铜条或橡胶,并经精密加工后配研,达到平面接触密封,密封性能好,当密封止水性能下降时,可通过楔块装置的调整加以解决。 二、产品结构特点和工作原理: 1.铸铁镶铜方闸门由门框、闸板、导轨、密封条、传动螺杆、吊块螺母/吊耳和可调整密封机构等部件组成,其中门框和闸板均由优质灰口铸铁或球墨铸铁制成,导轨左右对称布置且用不锈钢螺栓定位销与门框二侧端部连接 (对中小口径的闸门,其导轨可与门框浇注成一体),导轨长度一般为闸门全开启高度的1/2~1/3,因而整体结构强度高、刚性高、耐磨、耐腐蚀性好、承压能力大。 2.通过楔块装置的楔紧达到密封,密封材料为铜合金或橡胶,并经精密加工后配研,故密封性好。 3.采用预埋钢板或预埋螺栓式安装,安装、调试、使用、维护方便,使用寿命长。 4.品种规格齐全,适应性广。 5.与启闭机配套使用,闸门为工作部分,启闭机为闸门开启与关闭的执行部分,启闭机由人力、电机或气动、液压机构带动传动装置的齿轮、蜗轮蜗杆等运转,驱动传动螺母或螺杆转动使闸轴作垂直升降运动,从而开启或关闭闸门,达到 水、关水或调节水位的目的。 三、主要技术性能参数: 1.型号与规格: 方闸门:明杆式 ZMF DN300~DN2500mm 2.铸铁镶铜闸门主要性能指标: 四、主要外形连接尺寸: 单位:mm
上兆阀门其他产品: 闸 阀 截止阀 球 阀 蝶 阀 紧急切断阀 电磁阀 水力控制阀 止回阀 刀型闸阀 旋塞阀 过滤器 减压阀 疏水阀 隔膜阀 调节阀 阻火器 呼吸阀 燃气阀门 冶金阀门 | |||||||||||||||||||||||||||||||||||||||||||||||||||||||||||||||||||||||||||||||||||||||||||||||||||||||||||||||||||||||||||||||||||||||||
相关产品 |
|||||||||||||||||||||||||||||||||||||||||||||||||||||||||||||||||||||||||||||||||||||||||||||||||||||||||||||||||||||||||||||||||||||||||