

|
||||||||||||||||||||||||||||||||||||||||||||||||||||||||||||||||||||||||||||||||||||||||||||
|
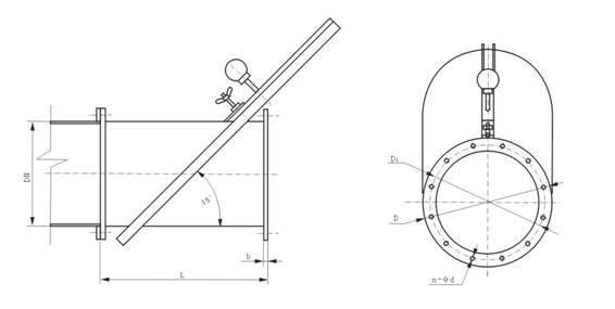
产品介绍 密闭式斜插板阀概述: 密闭式斜插板阀适用于密闭性要求较高的除尘气力输送管道,调节或切断物料流量的主要控制设备,具有结构简单、重量轻、无卡阻、操作灵活等优点,广泛地应用于冶金、矿山、建材、玻璃等行业系统中,控制物料的流量调节或切断作用。 密闭式斜插板阀主要性能: 介质流速:≤8m/s 工作温度:≤130℃ 适用介质:无粘度的粉尘气体、固体粉料、小颗粒物料。 密闭式斜插板阀可水平或垂直安装,但气流方向必须和阀体上的箭头方向一致,水平管道上插板应以45度顺气流安装,在垂直管道(气流向上)上插板以45度逆气安装。其公称直径指管道外径值。 密闭式斜插板阀适用于密闭性要求较高的除尘气力输送管道,调节或切断物料流量的主要控制设备,具有结构简单、重量轻、无卡阻、操作灵活等优点。 ![]() 密闭式斜插板阀主要外形及连接尺寸表:
密闭式斜插板阀订货知 订货时请填写《规格书》或注明以下内容: 一、若订货前还未选定型号,请向我们提供您的使用参数:1.公称通径、额定流量系数KV, 2.流体性质(包括公称压力、温度、粘度或酸碱性),3.阀作用形式(电-关式或电-开式),4.流量特性, 5.阀前、阀后压力,6.阀体、阀芯材料,7.输入信号,8.是否带附件,说明附件型号。以便我们的为您正确选型。 二、若已经由设计单位选定我公司的产品型号,请按型号直接向我司销售部订购; 三、当使用的场合非常重要或管路比较复杂时,请您尽量提供设计图纸和详细参数,由上海上兆阀门制造有限公司专家为您审核把关。 | ||||||||||||||||||||||||||||||||||||||||||||||||||||||||||||||||||||||||||||||||||||||||||||
相关产品 |
||||||||||||||||||||||||||||||||||||||||||||||||||||||||||||||||||||||||||||||||||||||||||||