

|
|||||||||||||||||||||||||||||||||||||||||||||||||||||||||||||||||
|
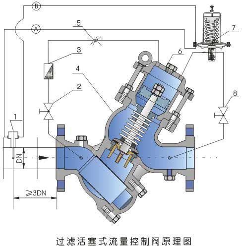
产品介绍 一、YQ98002型过滤活塞式安全泄压阀--原理: YQ98002型过滤活塞式安全泄压阀安装在高层建筑、消防给水系统以及其它给水系统的管道上,当给水管路中压力超过泄压阀设定压力时,泄压阀自动开启快速泄压,保护管线安全,也可作持压阀用, 保障主阀上游的供水压力。YQ98002型过滤活塞式安全泄压阀能准确保持不变的安全设定压力,一旦超压,泄压阀迅速打开,及时泄压。关闭平稳可靠,消除压力余波。利用水力自动操作,即可以作泄压阀用又可作持压阀用。作泄压阀用时,可维持供水路压力在设定的安全值之下;做持压阀用,可维持主阀上游水压在设定值之上,保持主阀上游供水压力。 二、YQ98002型过滤活塞式安全泄压阀--连接尺寸:
三、YQ98002型过滤活塞式安全泄压阀--特点: 1.毕托管向极敏感的限流导阀传递压信号, 无孔板孔口节流, 无压力损失, 节能. 四、YQ98002型过滤活塞式安全泄压阀--技术参数:
五、YQ98002型过滤活塞式安全泄压阀--零件材质:
六、YQ98002型过滤活塞式安全泄压阀--安装方式及连接要求: 一、根据工况的减压特性,必须在该阀前安装 闸阀; 二、方便日后对该阀进行检修工作.必须在减压阀后安装可曲绕软连接; 三‘最佳安装方式为卧式,其它方位也可以接受; 四、必须留出足够的工作空间方便检修; 五、吊装时采用有效措施进行.也可利用该阀吊环进行。 七、YQ98002型过滤活塞式安全泄压阀--安装图:
相关产品:300X缓闭止回阀 DN100缓闭止回阀 DN100口径缓闭止回阀 DN200口径缓闭止回阀 DN300口径缓闭止回阀 DN500口径缓闭止回阀 铸钢缓闭止回阀 不锈钢缓闭止回阀 铸铁缓闭止回阀 球墨铸铁缓闭止回阀 减压稳压阀 200X减压阀 200X可调减压阀 可调减压阀 200X不锈钢减压阀 200X球墨减压阀 200X铸铁减压阀 200X铸钢减压阀 上兆阀门其他产品: 闸 阀 截止阀 球 阀 蝶 阀 紧急切断阀 电磁阀 水力控制阀 止回阀 刀型闸阀 旋塞阀 过滤器 减压阀 疏水阀 隔膜阀 调节阀 阻火器 呼吸阀 燃气阀门 冶金阀门 | |||||||||||||||||||||||||||||||||||||||||||||||||||||||||||||||||
相关产品 |
|||||||||||||||||||||||||||||||||||||||||||||||||||||||||||||||||