BJ45W 角式保温截止阀该阀适用于化工、化肥行业的管路上,夹套内涵入蒸汽能防止介质结晶。
| 型号 | 公称压力PN(MPa) | 试验压力 | 适用温度 | 适用介质 | 保温套压力(MPa) |
| 壳体 | 密封 |
| BJ45W-25P | 2.5 | 3.75 | 2.75 | ≤200 | 硝酸类 | ≤1.0 |
| BJ45W-40P | 4.0 | 6.0 | 4.4 |
| BJ45W-64P | 6.4 | 9.0 | 6.6 |
| BJ45W-25R | 2.5 | 3.75 | 2.75 | 硝酸类 |
| BJ45W-40R | 4.0 | 3.0 | 4.4 |
| BJ45W-64R | 6.4 | 9.0 | 6.6 |
| 零件名称 | 阀体、阀盖 | 阀瓣 | 垫片 |
| BJ45W-25P、BJ45W-40P、BJ45W-64P | 铬镍钛钢 | 铬镍钛钢+硬质合金 | 聚四氟乙烯 |
| BJ45W-25P、BJ45W-40P、BJ45W-64P | 铬镍钼钛钢 | 铬镍钼钛钢+硬质合金 | 聚四氟乙烯 |
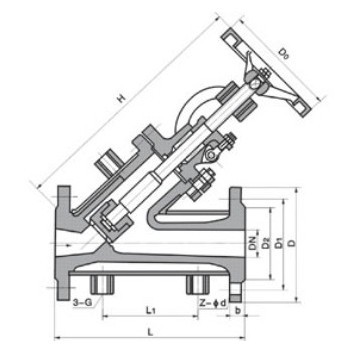
三、I型主要外形尺寸和连接尺寸(II型法兰大一级)
| 公称压力PN | 公称通径DN | 尺寸 |
| L | D | D1 | D2 | D3 | B1 | fo | B | D6 | 3-G | Z-Φd | H | H1 | Do |
2.5 4.0 | 15 | 170 | 105 | 75 | 55 | 35 | 8 | 4 | 16 | 51 | 3/8 | 4-Φ14 | 250 | 262 | 120 |
| 20 | 190 | 115 | 85 | 65 | 42 | 8 | 4 | 16 | 58 | 3/8 | 4-Φ14 | 292 | 308 | 140 |
| 25 | 210 | 135 | 100 | 78 | 50 | 8 | 4 | 18 | 66 | 3/8 | 4-Φ18 | 340 | 375 | 160 |
| 32 | 230 | 145 | 110 | 85 | 60 | 8 | 4 | 18 | 76 | 1/2 | 4-Φ18 | 338 | 375 | 160 |
| 40 | 260 | 160 | 125 | 100 | 72 | 8 | 4 | 20 | 88 | 1/2 | 4-Φ18 | 360 | 386 | 160 |
| 50 | 300 | 180 | 145 | 120 | 94 | 8 | 4 | 22 | 110 | 1/2 | 8-Φ18 | 410 | 450 | 240 |
| 65 | 340 | 195 | 160 | 135 | 105 | 8 | 4 | 22 | 121 | 1/2 | 8-Φ18 | 440 | 485 | 240 |
| 80 | 380 | 230 | 190 | 160 | 128 | 11 | 4.5 | 24 | 150 | 1/2 | 8-Φ23 | 540 | 600 | 280 |
| 100 | 430 | 270 | 220 | 188 | 154 | 11 | 4.5 | 28 | 176 | 1/2 | 8-Φ25 | 560 | 625 | 320 |
| 125 | 490 | 300 | 250 | 218 | 182 | 11 | 4.5 | 30 | 204 | 1/2 | 8-Φ25 | 625 | 737 | 360 |
| 150 | 550 | 330 | 280 | 248 | 212 | 11 | 4.5 | 32 | 204 | 1/2 | 12-Φ25 | 720 | 790 | 360 |

上兆阀门其他产品:
闸 阀 截止阀 球 阀 蝶 阀 紧急切断阀 电磁阀 水力控制阀 止回阀 刀型闸阀 旋塞阀 过滤器 减压阀 疏水阀 隔膜阀 调节阀 阻火器 呼吸阀 燃气阀门 冶金阀门