Y43X-10T/16T 型全铜比例式减压阀 PN10~PN16是以法兰连接形式、活塞式结构形式,阀座密封面材料为橡胶,公称压力PN10~PN16,阀体材料为铜的固定比例式减压阀。主要结构由阀体、进口压盖、活塞、出口压盖及 O 型圈、密封垫等零件组成。Y43X-10T、Y43X-16T 型全铜比例式减压阀是利用阀内浮动活塞两端不同的截面积构成压力差从而改变进水与出水的压力状况,达到减压的目的。结构严谨、新颖、运行流畅、体形轻巧便于安装、减压比例稳定,即减“动压”又减“静压”,材料采用全铜,适用于清洁水和海水,不怕结垢和锈独。
| 型号 | PN | 工作压力 / MPa | 适用温度 / ℃ | 适用介质 |
| Y43X-10T | 10 | 1 | ≤90 | 水、气 |
| Y43X-16T | 16 | 1.6 | ≤90 | 水、气 |
三、Y43X全铜比例式减压阀--主要零部件材料:
| 型号 | 阀体材料 |
| Y43X-10T | 全铜 |
| Y43X-16T | 全铜 |
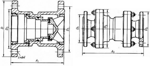
四、Y43X-10T 型--产品外形结构尺寸(mm):
| 比例 | DN | D | D1 | D2 | A1 | b | z×φd | D3 | A2 |
2:1 3:1 5:2 3:2 4:3 | 25 | 115 | 85 | 65 | 115 | 16 | 4×φ14 | — | — |
| 32 | 140 | 100 | 78 | 124 | 18 | 4×φ18 | — | — |
| 40 | 150 | 110 | 85 | 132 | 18 | 4×φ18 | — | — |
| 50 | 165 | 125 | 100 | 140 | 20 | 4×φ18 | — | — |
| 65 | 185 | 145 | 120 | 155 | 20 | 4×φ18 | — | — |
| 80 | 200 | 160 | 135 | 155 | 22 | 8×φ18 | — | — |
| 100 | 220 | 180 | 155 | 200 | 24 | 8×φ18 | — | — |
| 125 | 250 | 210 | 185 | 220 | 26 | 8×φ18 | — | — |
| 150 | 285 | 240 | 210 | 230 | 28 | 8×φ22 | — | — |
| 200 | 340 | 295 | 265 | 270 | 28 | 8×φ22 | — | — |
4:1 5:1 | 25 | 115 | 85 | 65 | — | 16 | 4×φ14 | 115 | 178 |
| 32 | 140 | 100 | 78 | — | 18 | 4×φ18 | 140 | 188 |
| 40 | 150 | 110 | 85 | — | 18 | 4×φ18 | 150 | 195 |
| 50 | 165 | 125 | 100 | — | 20 | 4×φ18 | 165 | 205 |
| 65 | 185 | 145 | 120 | — | 20 | 4×φ18 | 190 | 218 |
| 80 | 200 | 160 | 135 | — | 22 | 8×φ18 | 205 | 225 |
| 100 | 220 | 180 | 155 | — | 24 | 8×φ18 | 225 | 273 |
| 125 | 250 | 210 | 185 | — | 26 | 8×φ18 | 260 | 308 |
| 150 | 285 | 240 | 210 | — | 28 | 8×φ22 | 300 | 322 |
| 200 | 340 | 295 | 265 | — | 28 | 8×φ22 | 365 | 358 |
五、Y43X-10T 型--产品外形结构尺寸(mm):
| 比例 | DN | D | D1 | D2 | A1 | b | z×φd | D3 | A2 |
2:1 3:1 5:2 3:2 4:3 | 40 | 150 | 110 | 85 | 132 | 18 | 4×φ18 | — | — |
| 50 | 165 | 125 | 100 | 140 | 20 | 4×φ18 | — | — |
| 65 | 185 | 145 | 120 | 155 | 20 | 4×φ18 | — | — |
| 80 | 200 | 160 | 135 | 155 | 22 | 8×φ18 | — | — |
| 100 | 220 | 180 | 155 | 200 | 24 | 8×φ18 | — | — |
| 125 | 250 | 210 | 185 | 220 | 26 | 8×φ18 | — | — |
| 150 | 285 | 240 | 210 | 230 | 28 | 8×φ22 | — | — |
| 200 | 340 | 295 | 265 | 270 | 30 | 12×φ22 | — | — |
4:1 5:1 | 25 | 115 | 85 | 65 | — | 16 | 4×φ14 | 115 | 178 |
| 32 | 140 | 100 | 78 | — | 18 | 4×φ18 | 140 | 188 |
| 40 | 150 | 110 | 85 | — | 18 | 4×φ18 | 150 | 195 |
| 50 | 165 | 125 | 100 | — | 20 | 4×φ18 | 165 | 205 |
| 65 | 185 | 145 | 120 | — | 20 | 4×φ18 | 190 | 218 |
| 80 | 200 | 160 | 135 | — | 22 | 8×φ18 | 205 | 225 |
| 100 | 220 | 180 | 155 | — | 24 | 8×φ18 | 225 | 273 |
| 125 | 250 | 210 | 185 | — | 26 | 8×φ18 | 260 | 308 |
| 150 | 285 | 240 | 210 | — | 28 | 8×φ22 | 300 | 322 |
| 200 | 340 | 295 | 265 | — | 30 | 12×φ22 | 365 | 358 |
