

|
||||||||||||||||||||||||||||||||||||||||||||||||||||||||||||||||||||||||
|
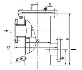
产品介绍 一、高低平底篮式过滤器--产品概述
SRBB 高低平底篮式过滤器主要由挡管、筒体、滤篮、法兰、法兰盖及紧固件组成。当流体通过筒体进入滤篮后,固体杂质颗粒被阻挡在滤篮内,而洁净的流体通过滤篮过滤由过滤器出口排出。当需要清洗时,旋开筒体底部螺塞排除流体,拆卸法兰盖,取出滤篮,清洗后重新放入即可。 二、高低平底篮式过滤器--主要尺寸
上兆阀门其他产品: 闸 阀 截止阀 球 阀 蝶 阀 紧急切断阀 电磁阀 水力控制阀 止回阀 刀型闸阀 旋塞阀 过滤器 减压阀 疏水阀 隔膜阀 调节阀 阻火器 呼吸阀 燃气阀门 冶金阀门 | ||||||||||||||||||||||||||||||||||||||||||||||||||||||||||||||||||||||||
相关产品 |
||||||||||||||||||||||||||||||||||||||||||||||||||||||||||||||||||||||||