F9T43X电动推杆扇形盲板阀详细资料:
一、电动推杆盲板阀产品特点:
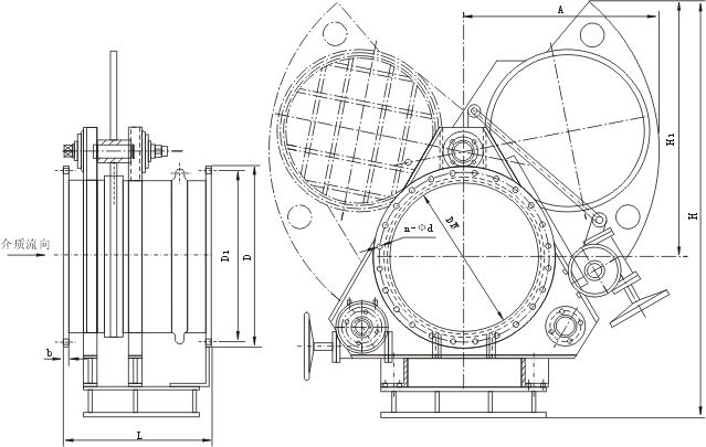
电动推杆扇形盲板阀又名电动推杆扇形眼镜阀,电动推杆扇形翻板,主要由左阀体、右阀体、阀杆、闸板、密封圈、电动推杆等零件组成,并由底座、支撑柱构成一个刚性结构体。密封部位采用不锈钢与橡胶密封圈,密封性能好,使用寿命长,密封圈设置闸板上,易于维护时更换密封圈,橡胶密封圈镶钳在闸板上。电动推杆盲板阀可以单台远距离控制,亦可多台联网远距离控制,非正常情况下还可以利用阀门本身装置手动操作。
二、电动推杆盲板阀主要性能参数:
公称压力MPa | 0.25 | 0.15 | 0.10 | 0.05 |
密封试验压力MPa | 0.275 | 0.165 | 0.11 | 0.055 |
强度试验压力MPa | 0.375 | 0.225 | 0.15 | 0.075 |
驱动源 | 电动装置 |
适用温度℃ | 丁腈橡胶 | 硅橡胶 | 氟橡胶 |
| | |
适用介质 | 煤气等有毒、有害、易燃气体 |
| |
主要零部件材料 | 阀体、闸板为碳钢;丝杆为合金钢;螺母为锰铜合金、球墨铸铁;伸缩器为不锈钢 |
三、电动推杆盲板阀主要外形尺寸: 单位:mm
DN | D | D1 | b | n-φd | L |
300 | 440 | 395 | 18 | 12-φ22 | 500 |
350 | 490 | 445 | 18 | 12-φ22 | 600 |
400 | 540 | 495 | 24 | 16-φ22 | 600 |
450 | 595 | 550 | 24 | 16-φ22 | 600 |
500 | 645 | 600 | 26 | 20-φ22 | 600 |
600 | 755 | 705 | 26 | 20-φ26 | 600 |
700 | 860 | 810 | 26 | 24-φ26 | 600 |
800 | 975 | 920 | 35 | 24-φ30 | 800 |
900 | 1075 | 1020 | 35 | 24-φ30 | 800 |
1000 | 1175 | 1120 | 35 | 28-φ30 | 800 |
1100 | 1275 | 1220 | 35 | 36-φ30 | 800 |
1200 | 1375 | 1320 | 35 | 32-φ30 | 800 |
1300 | 1475 | 1420 | 35 | 36-φ30 | 800 |
1400 | 1575 | 1520 | 35 | 36-φ30 | 800 |
1500 | 1675 | 1620 | 35 | 36-φ30 | 850 |
1600 | 1790 | 1730 | 35 | 40-φ30 | 850 |
1800 | 1990 | 1930 | 35 | 44-φ30 | 1100 |
2000 | 2190 | 2130 | 35 | 46-φ30 | 1100 |

四、电动推杆盲板阀订货须知:
1、①产品名称与型号②电动推杆盲板阀口径③是否带附件以便我们的为您正确选型。
2、若已经由设计单位选定的电动推杆盲板阀型号,请按电动扇形盲板阀型号直接向我司销售部订购。
3、当使用的场合非常重要或环境比较复杂时,请您尽量提供设计图纸和详细参数。
上兆阀门其他产品:
闸 阀 截止阀 球 阀 蝶 阀 紧急切断阀 电磁阀 水力控制阀 止回阀 刀型闸阀 旋塞阀 过滤器 减压阀 疏水阀 隔膜阀 调节阀 阻火器 呼吸阀 燃气阀门 冶金阀门