

| 大口径法兰截止阀J41H-16C-500 发布时间:17-10-24 | ||||||||||||||||||||||||||||||||||||||
大口径法兰截止阀J41H-16C-500为国内最大的截止阀。大口径截止阀有阀体、阀盖、阀杆、主阀瓣和副阀瓣组成。阀体材质为WCB铸钢材质,也可根据用户的需求定做其他特殊材质。上兆阀门生产的大口径截止阀质量稳定价格合理。主要用于石油、天然气、化工、电力、冶金、国防科技、矿山、船舶、食品、医药、供水、暖通、城建等重要领域。公司拥有先进的管理机制和优秀的专业技术队伍。用科学技术进步降低生产成本,用精密设备提高产品质量,用环保新思维促进可持续发展,产品结构先进,技术精湛,按国际标准分部标、国标、美标、日标、德标等。所有阀门入库前均经严格检测,确保了产品质量的可靠性。
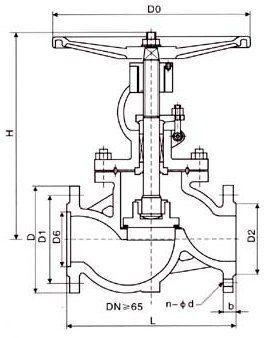
大口径法兰截止阀J41H-16C-500--性能参数:
大口径法兰截止阀J41H-16C-500--配件材质说明:
上兆阀门其他产品: 闸 阀 截止阀 球 阀 蝶 阀 紧急切断阀 电磁阀 水力控制阀 止回阀 刀型闸阀 旋塞阀 过滤器 减压阀 疏水阀 隔膜阀 调节阀 阻火器 呼吸阀 燃气阀门 冶金阀门
|
||||||||||||||||||||||||||||||||||||||
|
||
|
||
|
||
|
||
|
||
|
||
|
||
|
||
|
||
|
||
|
||
|
||
|
||
|
||
|
||