燃气专用截止阀与常用截止阀的区别 
一、J41N燃气专用截止阀--概述: J41N 燃气专用截止阀驱动方式为手动,连接为法兰连接方式,阀门为直通式,阀座密封面材料为尼龙塑料、公称压力 PN40、阀体材料为碳素钢的截止阀。本阀门使用于城市液化气石油气贮备站,也使用于炼油厂,石油化工厂,石油化工厂的液化气系统,作为控制介质截的启闭装置 J41N 燃气专用截止阀主要性能参数 | 型号 | PN | 工作压力 / MPa | 适用温度 / ℃ | 适用介质 | J41N-40 | 40 | 4.0 | ≤150 | 石油气、空气等无腐蚀性介质 |
J41N 燃气专用截止阀零部件材料 | 型号 | 材料 | | 阀体、阀盖 | 阀杆 | 密封面 | 填料 | | J41N-40 | 碳素钢铸件或锻件 | 碳素钢铸件或锻件 | 铁基合金 | 铁基合金 | |
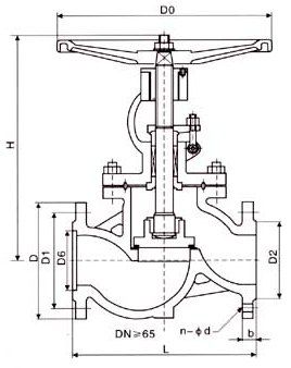
J41N 燃气专用截止阀外形结构尺寸 (mm) | DN | L | D | D1 | D2 | b | z×φd | H | D0 | 重量/KG | 10 | 130 | 90 | 60 | 40 | 16 | 4×φ14 | 198 | 120 | 4.5 | 15 | 130 | 95 | 65 | 45 | 16 | 4×φ14 | 233 | 120 | 5 | 20 | 150 | 105 | 75 | 55 | 16 | 4×φ14 | 275 | 140 | 7 | 25 | 160 | 115 | 85 | 65 | 16 | 4×φ14 | 285 | 160 | 9 | 32 | 180 | 135 | 100 | 78 | 18 | 4×φ18 | 302 | 160 | 12 | 40 | 200 | 145 | 110 | 85 | 18 | 4×φ18 | 355 | 200 | 17 | 50 | 230 | 160 | 125 | 100 | 20 | 4×φ18 | 373 | 240 | 24 | 65 | 290 | 180 | 145 | 120 | 22 | 8×φ18 | 408 | 280 | 33 | 80 | 310 | 195 | 160 | 135 | 22 | 8×φ18 | 436 | 320 | 44 | 100 | 350 | 230 | 190 | 160 | 24 | 8×φ23 | 480 | 360 | 60 | 125 | 400 | 270 | 220 | 188 | 28 | 8×φ25 | 558 | 400 | 89 | 150 | 480 | 300 | 250 | 218 | 30 | 8×φ25 | 611 | 400 | 130 |
J41H-16C~160C 铸钢法兰截止阀:手动、法兰连接、直通式、阀座密封面材料为 Cr13 系不锈钢、公称压力 PN16~PN160、阀体材料为碳素钢的截止阀。 四、产品外形及结构尺寸 1.6MPa | DN | L | D | D1 | D2 | b | z×?d | H | D0 | 重量/KG | | 10 | 130 | 90 | 60 | 40 | 14 | 4×?14 | 198 | 120 | 5 | | 15 | 130 | 95 | 65 | 45 | 14 | 4×?14 | 200 | 120 | 5.5 | | 20 | 150 | 105 | 75 | 55 | 14 | 4×?14 | 243 | 140 | 7.3 | | 25 | 160 | 115 | 85 | 65 | 14 | 4×?14 | 253 | 160 | 8 | | 32 | 180 | 135 | 100 | 78 | 15 | 4×?18 | 280 | 160 | 12 | | 40 | 200 | 145 | 110 | 85 | 16 | 4×?18 | 312 | 200 | 16 | | 50 | 230 | 160 | 125 | 100 | 16 | 4×?18 | 321 | 200 | 16 | | 65 | 290 | 180 | 145 | 120 | 18 | 4×?18 | 325 | 240 | 22 | | 80 | 310 | 195 | 160 | 135 | 20 | 4×?18 | 355 | 240 | 31 | | 100 | 350 | 215 | 180 | 155 | 20 | 4×?18 | 415 | 280 | 45 | | 125 | 400 | 245 | 210 | 185 | 22 | 4×?18 | 460 | 320 | 80 | | 150 | 480 | 280 | 240 | 210 | 24 | 8×?23 | 510 | 360 | 97 | | 200 | 600 | 335 | 295 | 265 | 26 | 12×?23 | 590 | 360 | 169 |
五、产品外形及结构尺寸 2.5MPa | DN | L | D | D1 | D2 | b | z×?d | H | D0 | 重量/KG | | 10 | 130 | 90 | 60 | 40 | 16 | 4×?14 | 198 | 120 | 4.9 | | 15 | 130 | 95 | 65 | 45 | 16 | 4×?14 | 233 | 120 | 5.5 | | 20 | 150 | 105 | 75 | 55 | 16 | 4×?14 | 275 | 140 | 7 | | 25 | 160 | 115 | 85 | 65 | 16 | 4×?14 | 285 | 160 | 7.5 | | 32 | 180 | 135 | 100 | 78 | 18 | 4×?18 | 302 | 180 | 8.5 | | 40 | 200 | 145 | 110 | 85 | 18 | 4×?18 | 355 | 200 | 12.5 | | 50 | 230 | 160 | 125 | 100 | 20 | 4×?18 | 362 | 240 | 16 | | 65 | 290 | 180 | 145 | 120 | 22 | 8×?18 | 325 | 280 | 25 | | 80 | 310 | 195 | 160 | 135 | 22 | 8×?18 | 369 | 280 | 30 | | 100 | 350 | 230 | 190 | 165 | 24 | 8×?23 | 370 | 300 | 35 | | 125 | 400 | 270 | 220 | 188 | 28 | 8×?18 | 558 | 400 | 89 | | 150 | 480 | 300 | 250 | 218 | 30 | 8×?23 | 611 | 400 | 98 | | 200 | 600 | 360 | 310 | 278 | 34 | 12×?25 | 721 | 400 | 170 |
六、产品外形及结构尺寸 4.0MPa | DN | L | D | D1 | D2 | b | z×?d | H | D0 | 重量/KG | | 10 | 130 | 90 | 60 | 40 | 16 | 4×?14 | 198 | 120 | 4.5 | | 15 | 130 | 95 | 65 | 45 | 16 | 4×?14 | 233 | 120 | 5 | | 20 | 150 | 105 | 75 | 55 | 16 | 4×?14 | 275 | 140 | 7 | | 25 | 160 | 115 | 85 | 65 | 16 | 4×?14 | 285 | 160 | 9 | | 32 | 180 | 135 | 100 | 78 | 18 | 4×?18 | 302 | 160 | 12 | | 40 | 200 | 145 | 110 | 85 | 18 | 4×?18 | 355 | 200 | 17 | | 50 | 230 | 160 | 125 | 100 | 20 | 4×?18 | 373 | 240 | 24 | | 65 | 290 | 180 | 145 | 120 | 22 | 8×?18 | 408 | 280 | 33 | | 80 | 310 | 195 | 160 | 135 | 22 | 8×?18 | 436 | 320 | 44 | | 100 | 350 | 230 | 190 | 160 | 24 | 8×?23 | 480 | 360 | 60 | | 125 | 400 | 270 | 220 | 188 | 28 | 8×?25 | 558 | 400 | 89 | | 150 | 480 | 300 | 250 | 218 | 30 | 8×?25 | 611 | 400 | 130 |

上兆阀门其他产品:
闸 阀 截止阀 球 阀 蝶 阀 紧急切断阀 电磁阀 水力控制阀 止回阀 刀型闸阀 旋塞阀 过滤器 减压阀 疏水阀 隔膜阀 调节阀 阻火器 呼吸阀 燃气阀门 冶金阀门 |